Rodneylifestyleproperty

powered by Open2view.com

4 Lewis Lane

Auckland
6
5.5
N/A
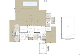
650sqm
22850sqm
4 Lewis Lane Auckland
proudly marketed by
Precision Real Estate MREINZ
Spectacular Coatesville Estate
Spectacular Coatesville Estate Immerse yourself in the epitome of luxury with this breathtaking northern French chateau-style residence, gracefully situated on an expansive 2.28 hectares (5.64 acres) of lush, manicured landscape. Crafted by the esteemed Masonry Design Solutions Ltd, under the visionary guidance of Mark Wilson, and brought to life by the award-winning Richard Davidson Builders, this magnificent home harmoniously intertwines timeless elegance with modern conveniences. Boasting an extensive floor area of 650 m², the interior radiates a sense of grandeur, featuring generously proportioned rooms that invite both comfort and sophistication. The grand formal lounge, with its high ceilings and exquisite detailing, offers an elegant space to welcome guests, while the formal dining room captivates with its stunning French glass beaded wallpaper, setting the stage for unforgettable meals and celebrations. The open-plan family living and dining area seamlessly flows into a gourmet kitchen, designed for both relaxed family gatherings and lively entertaining. Featuring a luxurious palatial master suite complete with a spacious dressing room and an elegant ensuite. The expansive guest bedroom boasts a striking double-height ceiling, enhancing the sense of space and light, along with its own generous ensuite for added convenience and privacy. Kids will love the thoughtfully designed wing, complete with a spacious lounge/media room, ideal for family fun and entertaining! With three generous bedrooms and two beautifully appointed bathrooms, there's more than enough room for everyone. For recreational enjoyment, the property also features a stylish billiards room, perfect for hosting friends or enjoying a relaxed evening at home. The enchanting outdoor space unfolds like a private paradise, featuring a heated swimming pool, a spa pool, a tennis court, and meticulously landscaped gardens that create a serene, inviting atmosphere. A standout feature of the property is the expansive loggia and fireplace, an enchanting outdoor retreat ideal for entertaining or simply soaking up the tranquil surroundings. With expansive flat lawns, idyllic paddocks, and post-and-rail fencing, this property offers ample opportunities for outdoor recreation, all positioned on an elevated site that affords both privacy and breathtaking views Comfort is paramount throughout the home, enhanced by a sophisticated home automation system, underfloor heating powered by a state-of-the-art heat pump, and an advanced HRV ventilation system that promises year-round climate control. Additionally, the home benefits from solar hot water heating, reflecting a commitment to energy efficiency and sustainability. Practical amenities are also abundant, including a large storage shed ideal for housing a helicopter or motorhome, a spacious barn for extra storage, and a handy utility room thoughtfully positioned between the triple car garage and laundry area for seamless functionality. Safety and accessibility are seamlessly integrated into the property, featuring automated electric gates, a security camera system, and a generously paved curbed driveway that provides abundant parking for guests and family. This residence is not just a house; it is a luxurious haven- a true testament to refined living that caters to those who value versatility in their lifestyle while embracing exquisite outdoor amenities, all wrapped in a magnificent setting. Explore the possibilities this exceptional home offers and imagine the beautiful memories waiting to unfold within its walls! Call Nicky today on 021 754 667 to organise
Question
Location